7012
{VIVIR / DISEñOS Y ARQUITECTURA}
Desde Rusia con amor
La arquitectura soviética en los años 20 y 30
“En la historia que va de 1925 a 1932 aproximadamente, existe un breve período en el cual ese tipo de arquitectura floreció y pudo desarrollarse libremente. Esta época se caracterizó por una apertura a la experimentación social y a las nuevas formas de organizar la vida que simbolizaron los primeros años del Estado soviético. Los arquitectos de entonces, muy idealistas, crearon edificios dotados de una intención social. Querían hacer realidad la promesa de la revolución, la de una sociedad nueva y mejor”. (María Makogonova)
Introducción
Un reciente viaje a Moscú y San Petersburgo nos permitió conocer, el año pasado, algunas de las realizaciones de uno de los periodos arquitectónicas más interesantes del siglo XX, un siglo por cierto cuajado de renovadores postulados y magníficos ejemplos de nuevas arquitecturas que nacieron al amparo de importantes transformaciones políticas, económicas, sociales y culturales.
La Revolución rusa de 1917 fue una de ellas.
Rusia era en esa época un país eminentemente rural, en el que la nobleza, el poder religioso y el poder económico ejercían un dominio casi feudal sobre el resto de la sociedad.
La insistencia del Gobierno Provisional de 1917 en mantener la participación de Rusia en la I Guerra Mundial agravó las tremendas condiciones de vida de una inmensa parte de la población (trabajo esclavista en el campo y en una atrasada industria, vivienda precaria, ausencia de educación y sanidad para la mayoría, etc.) y contribuyó de forma decisiva en la génesis de la revolución.
La toma de posición de las diferentes opciones políticas, los importantes intereses económicos extranjeros y el rechazo internacional a la creación de una nueva sociedad propiciaron un proceso bélico en el que se mezcló el final de la I Guerra Mundial con una nueva Guerra Civil, en la que el gobierno revolucionario se enfrentó al Ejército Blanco, ayudado éste por las potencias occidentales.
Nuevas medidas, nuevos proyectos
Y si radicales fueron las medidas sociales y económicas que tomó el nuevo gobierno, (abolición de la propiedad privada de la tierra, nacionalización de la industria, establecimiento de la jornada de 8 horas, incorporación de la mujer a la sociedad en todas sus facetas, etc.), radicales fueron también las respuestas que desde una sociedad escasamente estructurada se pusieron en marcha, y entre ellas las relativas a la arquitectura y a la construcción dentro del marco de “crear una nueva vida para una nueva sociedad”.
A tal fin se construyeron edificios de todo tipo (viviendas, centros sociales, fábricas de pan y comedores comunales, colegios y guarderías, edificios industriales e institucionales, etc.) que constituyeron un interesante banco de pruebas para la nueva arquitectura.
Para ello el nuevo poder contó con el apoyo y colaboración de artistas, escritores, poetas, diseñadores y arquitectos que desde diferentes frentes y tomas de posición precedentes se sumaron a la renovación total del lenguaje artístico y de sus contenidos, tomando como destinataria de su trabajo a la sociedad, despertando un gran interés entre los artistas y arquitectos europeos como Picasso, Le Corbusier, E. Mendelsohn, H. Meyer, etc.
Como ejemplo de todo ello vamos a reseñar tres edificios de los que visitamos, correspondientes a actividades y soluciones constructivas muy diferentes, pero que reflejan nítidamente las inquietudes sociales y arquitectónicas que se plantearon sus autores y otros muchos más en el comienzo de esta nueva etapa.
La vivienda
Uno de los proyectos fundamentales del nuevo gobierno trató de dar solución al acuciante problema de la vivienda, agravado en las ciudades por la importante migración que se trasladó desde el mundo rural.
La primera medida tomada en este campo supuso la expropiación de todas las viviendas de la nobleza y burguesía y su redistribución en unidades residenciales de reducidas dimensiones, poco más de una habitación con derecho a uso de la cocina y el baño común y con el vestíbulo como sala de estar, tal como ilustra la película 'Doctor Zhivago'. A pesar de la ausencia de un “proyecto arquitectónico” que ordenase esta profunda transformación, seguramente imposible en aquellos momentos, y de la falta de privacidad personal y familiar a la que nos traslada la película, esta medida supuso para la mayoría de la sociedad el poder disponer de un mínimo habitacional, lo que expresa claramente la situación en la que se encontraba el país.
En un segundo momento, y ya con una cierta infraestructura técnica y la ilusión de numerosos arquitectos jóvenes, se puso en marcha la planificación y construcción de nuevas viviendas con servicios comunes (las dom-comunas), desarrolladas, primero, a través del Concurso Amistoso de 1926, y posteriormente, de los proyectos tipo de diferentes Asociaciones de Arquitectos y del Departamento de Estandarización del Stroikom.
Así mismo fue frecuente e intenso el debate entre quienes propugnaban una total socialización del modo de vida y quienes entendían que no era posible pasar, sin transición, de una forma de habitar individualista a aquella, proponiendo estadios intermedios.
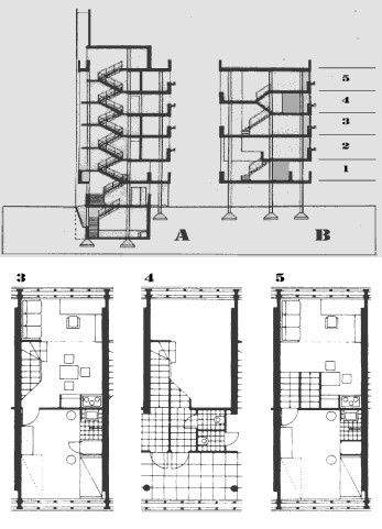
Del conjunto de propuestas y realizaciones correspondientes a la década de los años 20, período de especial significado para la arquitectura producida por la Revolución, conviene destacar, por la vigencia de muchos de sus planteamientos, el edifico Narkomfim, obra de los arquitectos M. Ginzburg e I. Milinis, con la colaboración del ingeniero Prokhorov, construido en Moscú entre 1928 y 1930 por encargo del Comisario de Finanzas y que pudimos visitar.
Su lamentable estado constructivo, fruto de la desidia y del abandono, no empaña el novedoso planteamiento que proponía, compaginando la idea de una vida comunitaria propiciada por el estado soviético con un amplio margen de libertad e intimidad.
Su proyecto contemplaba la construcción de un edificio lineal con 54 apartamentos y viviendas de diferentes tamaños, y otros tres destinados, uno a actividades comunitarias (comedor, sala de actos, gimnasio, etc.), otro a guardería y un último a lavandería. Al final se construyó el edificio residencial, el edificio que reunía las actividades comunitarias incluyendo la guardería y el edificio de la lavandería.
El edificio residencial tiene seis plantas, de ellas la baja, construida sobre pilares, quedaba libre para uso recreativo cubierto y en las cinco superiores se ubicaban las viviendas, que variaban en distribución y tamaño, desde módulos apartamentos para una persona, hasta viviendas dúplex para cuatro o cinco personas, pasando por viviendas triplex para dos personas. A todas ellas se accedía por dos galerías abiertas a fachada y acristaladas, una de las cuales, la de la primera planta comunicaba mediante un paso en puente con el centro social. La cubierta plana se concibió como solárium y zona de juegos, de tal forma que bien puede calificarse este edificio como precursor de L’Unité d’Habitation en Marsella, de Le Corbusier.
En su génesis los arquitectos diseñaron gran parte del mobiliario. Por ejemplo, un armario con puertas plegables contenía una pequeña cocina, ya que las comidas estaban previstas se hiciesen en el comedor colectivo, o muebles con camas plegables que crearon para los módulos individuales.
El edificio social disponía de dos grandes espacios, con doble altura cada uno, y una serie de dependencias complementarias que permitían una cierta versatilidad en su uso, pudiendo cumplir con las funciones que permitían el desarrollo personal y social.
Su formalización respondía a los planteamientos puristas de la nueva arquitectura moderna, desornamentación absoluta, importancia de la tipología estructural, ventanas longitudinales o grandes cristaleras, volúmenes prismáticos, etc, coincidiendo con los planteamientos de Le Corbusier que definía a la vivienda como “une machine a habiter”.
Actualmente parece ser que es propiedad de un grupo financiero-inmobiliario que tiene pensado convertirlo en un aparthotel de lujo. Ironías del destino, los esfuerzos conceptuales de una corriente de vanguardia en arquitectura acabarán alojando a residentes o turistas millonarios, cuyo estilo de vida probablemente no tiene nada que ver con los principios que informaban el Constructivismo.
Los clubs de obreros
El triunfo de la Revolución conllevó, como se ha dicho, la creación de una nueva forma de vida, poniendo en marcha un ambicioso plan de formación cultural y política con la construcción de numerosos edificios culturales en los que el teatro, el cine, el debate político y el gimnasio se repartían el espacio, ante la ausencia total de este tipo de dotaciones en la antigua Rusia con excepción de los tradicionales teatros situados en el centro de las grandes ciudades, a los que, por supuesto, no podían acceder las clases populares.
Por ello, y a instancias de las nuevas organizaciones sindicales y municipales se crean, a partir de mediados los años 20, los clubs obreros, definidos como la “segunda casa para el proletariado liberado”, y “el tema más puro de la arquitectura” a decir del arquitecto K. Melnikov, autor de varios de sus mejores ejemplos a los que consideraba como unos “condensadores sociales”. Para El Lissitzky, el club obrero era “el taller de la transformación del hombre”. Estas definiciones dan idea de la importancia que tenía su creación y funcionamiento en los barrios y complejos industriales.
El primero que se construye fue el Club Rusakov en Moscú, según el proyecto de K. Melnikov encargado por la “Unión Kommunalnik”, vinculado a la fabrica-taller de reparación de automóviles del mismo nombre y que fue inaugurado en 1927.
En él Melnikov hace gala de la capacidad expresiva del propio programa funcional para formalizar su arquitectura. Un edificio en cuña con tres volúmenes volados que corresponden a los tres anfiteatros del cine-teatro-salón de actos, verdadera razón de ser del propio club.
Dichos espacios, que pueden llegar a funcionar autónomamente mediante la disposición de paneles practicables, dirigen la mirada de los asistentes hacia el escenario situado en el vértice de la planta.
Entre aquellos se sitúan los dos núcleos de escaleras cerrados con un frente acristalado que desembarcan directamente a la calle, facilitando la evacuación del edificio en caso de emergencia. Una planta de aulas y salas, bajo los anfiteatros, constituye el zócalo urbano del edificio que se ofrece como testimonio de una nueva arquitectura.
En su concepción está presente la idea de la máquina, de lo dinámico, de la tensión entre planos y líneas que se entrecruzan, del juego entre contrarios (ligero y pesado a la vez) y todo ello con un rigor estructural y una austeridad formal absoluta. Por su aspecto y actividad se le denominó popularmente “la bocina de la calle Strominka”.
Melnikov únicamente se permite un pequeño gesto, con la rotulación de la parte superior de la fachada, eliminada en los años 70 y recuperada después de los 90. De diseño tipográfico coherente con el momento estético, nos informa del nombre del edifico, Club Rusakov (a la izda.), de la organización que lo promovió, Unión Kommunalnik´ (en el centro), y del objetivo que se le encomendaba, Escuela de Comunismo (a la derecha).
El arquitecto relata en sus memorias que el edificio contó en un primer momento con una cierta resistencia, no del sindicato ni de los trabajadores, sino del jefe de la Sección de Ingeniería Regional, institución que debía realizar la obra y al que asustaba la construcción de los potentes anfiteatros volados. Llamado al orden por el responsable del Mossoviet, la obra se inició sin problemas.
Hacia la industrialización
Las profundas transformaciones políticas, económicas y sociales produjeron, en los primeros años del régimen soviético, la huida de todo el capital nacional o extranjero, propietario de las escasas industrias existentes y que fueron ocupadas por los trabajadores.
El país tuvo que reinventarse. Entre las prioridades del nuevo gobierno estuvo la de sacar al país del atraso económico, condición fundamental para hacer viable la construcción de una nueva sociedad, poniendo en marcha una política de industrialización con la construcción de numerosos complejos fabriles, centrales eléctricas e infraestructuras de comunicación a lo largo y ancho de su territorio, industrialización a la que, paradógicamente, contribuiría Henry Ford con una fábrica de tractores.
Aún así fueron años de grandes carencias. Arquitectos extranjeros invitados a realizar sus proyectos como E. Mendelsohn (la fábrica textil Bandera Roja en San Petersburgo) y Le Corbusier (el edificio administrativo Centrosoyuz en Moscú) constatan la precariedad de los sistemas constructivos disponibles en esos momentos, lo que les obligó a renunciar a alguno de los planteamientos proyectados. En general, la escasez de materiales como el hierro y el hormigón se suplía con ingeniosas soluciones a base de madera y ladrillo.
Un magnífico ejemplo de esta actitud, que hace de la necesidad virtud, lo constituye la obra del ingeniero V. Shukov, especialmente la Torre de comunicaciones Shábolovka en Moscú realizada entre 1919 y 1922, cuyo nombre hace referencia a la calle en la que se sitúa.
Por encargo directo de V. I. Lenin, Shukov proyecta, desarrollando modelos previos que había realizado, una estructura hiperboloide de 350 metros de altura, más alta que la Torre Eiffel y con menos de una cuarta parte de su peso, pensada para ser construida como una estructura reticular con perfilería de acero, formando una ligera, y a la vez, tupida celosía, para cumplir su misión como antena de radiocomunicaciones.
Lamentablemente la situación de guerra civil y la falta de acero redujo su altura a 150 metros, lo que no le impide dar testimonio de la total identificación entre estructura y forma. Frei Otto dijo de la obra de Shukov “sus hiperboloides constituyen las primeras estructuras en las cuales la membrana de cobertura y la estructura son la misma cosa”.
Convertida en símbolo del plan de electrificación del país su silueta que acompañaba a la figura de Lenin en los carteles propagandísticos de los logros del estado soviético, sigue destacando como un icono de la arquitectura e ingeniería vanguardista en la silueta de Moscú, aunque no se sabe si por mucho tiempo.
La falta de un mínimo mantenimiento a lo largo de su historia la han situado en un estado de precariedad que ha sido aprovechado por el nuevo poder económico ruso para justificar su derribo y proponer construir un edifico de 50 plantas, frente a lo cual se levantó una campaña internacional a favor de su conservación y mantenimiento que parece haber parado tal iniciativa.
Sin duda muchos otros edificios merecerían ser mencionados y descritos como testimonio de una difícil y, a la par, gloriosa etapa de la arquitectura rusa, corriendo el riesgo de agotar a los lectores que no tiene por qué compartir nuestra admiración por la misma.
Decir, por último, que todo este proceso cultural, artístico, social y a la vez individualista, disciplinado y polémico internamente, que se reunió bajo el nombre del Constructivismo sufrió una drástica interrupción bajo el gobierno de Stalin. La difícil convivencia entre los movimientos artísticos de vanguardia y un modelo político que pretendía controlar cada vez más espacios vitales se ve reflejada en el resultado del Concurso para el Palacio de los Soviets, realizado en 1931, y en el que fue premiada la megalómana y abarrocada propuesta del arquitecto Boris Iofan, frente a los modernos diseños presentados por M. Ginzburg, los hermanos Vesnin, N. Vasiliev, Le Corbusier, W. Gropius, y otros muchos arquitectos. Esta situación final queda bien recogida en el siguiente texto de Kennet Frampton “Que a Stalin no le gustaba en absoluto el internacionalismo elitista quedó confirmado oficialmente por el lema cultural, populista y nacionalista enunciado en 1932 por Anatoly Lunacharsky, su célebre: “Columnas para el pueblo”, que condenó de hecho a la arquitectura soviética a una forma regresiva de historicismo”./José Miguel León y Miguel Ángel Prieto, arquitectos. Planta Baja
* Visita Galería de Imágenes.
LO MÁS LEIDO
Suscripción a la Newsletter 